The Offerman Loft project was part of a larger mixed use development on Fulton Street in Brooklyn, New York. After years of disrepair the Landmarked building was gutted and turned into lofts while trying to maintain the original character and architectural elements.

Rendering of the proposed Oculus.

The Oculus prior to construction.

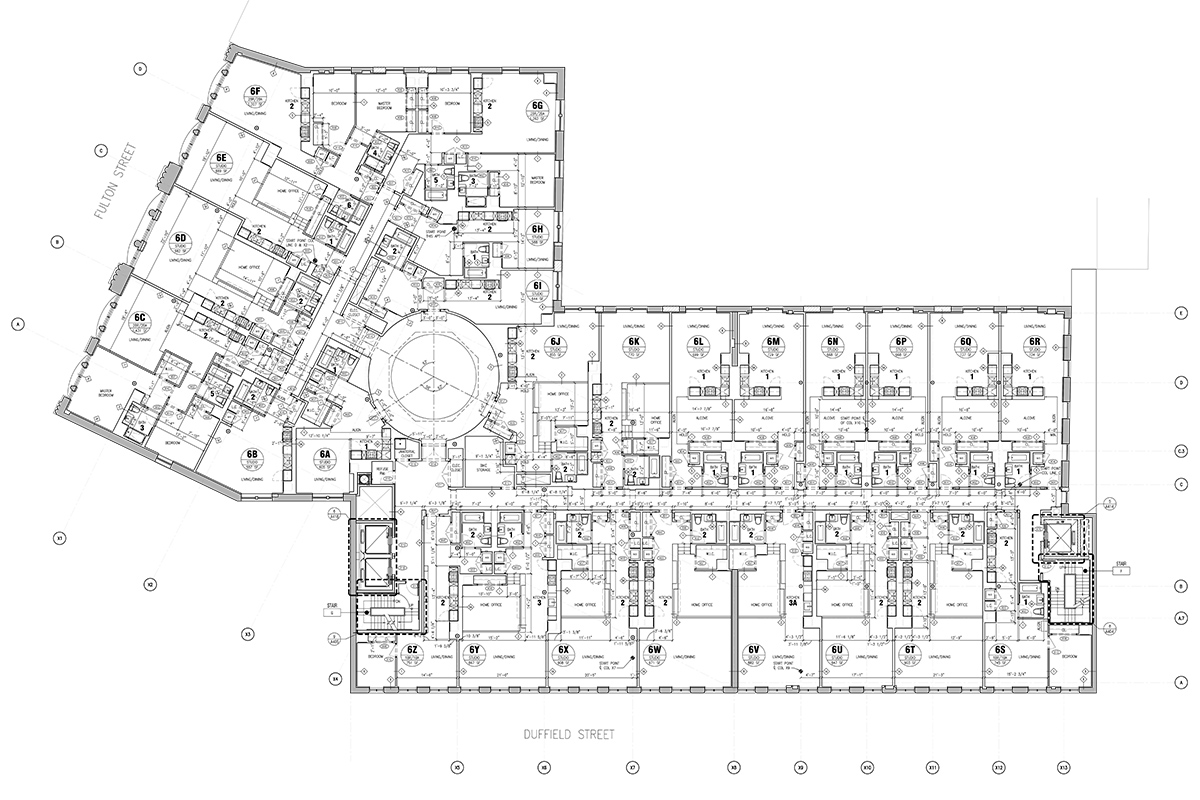
Proposed Sixth Floor Plan

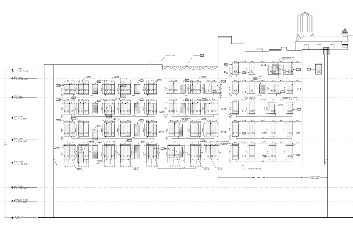
Proposed West Elevation

Existing West Elevation