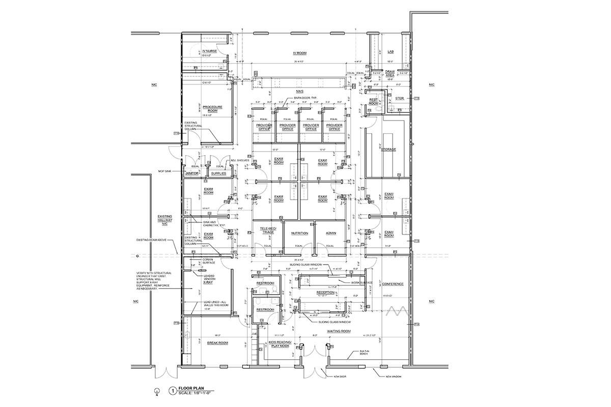
This project was a tenant fit out in an existing commercial building in Homer, Alaska consisting of eight exam rooms, procedure room, x-ray, IV infusion, nurses stations, prep and sterilization areas, and offices for tele-medicine and a nutritionist.
The main concepts behind this project was harnessing the winter daylight and taking full advantage of the views across Kachemak Bay. The walls that lined the hallway were to be translucent double wall polycarbonate panels, which would allow for natural ambient light to penetrate the rooms while obscuring views.
