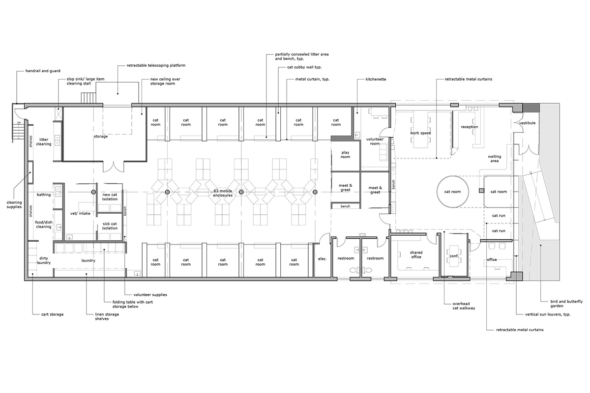
The Animal House is a non-profit cat shelter providing a sanctuary and safety to rescued cats until they can find their forever homes. The project was to look at how to make their space work better for them by improving work flow, organization, integrating a clinic, while creating a comfortable space for the cats, volunteers, and potential adopters.

We designed the cat rooms to have "caves" built into the dividing partitions connected by a series of playful walkways that allow for different types of movement and uses by the cats. Built-in litter bins allow the space to stay visually clean while providing a place for the volunteers to sit while spending time in the rooms.

New intake and isolation rooms were created to allow a veterinarian to work at the clinic.

The lobby was re-envisioned to give give maximum flexibility to the space by using sliding metal curtains to create rooms for more cats when needed.

Separated spaces for cats to meet potential adopters were created.
Proposed Floor Plan

Prior to designing we spent time researching cats vision, movements, and abilities to inform our design.