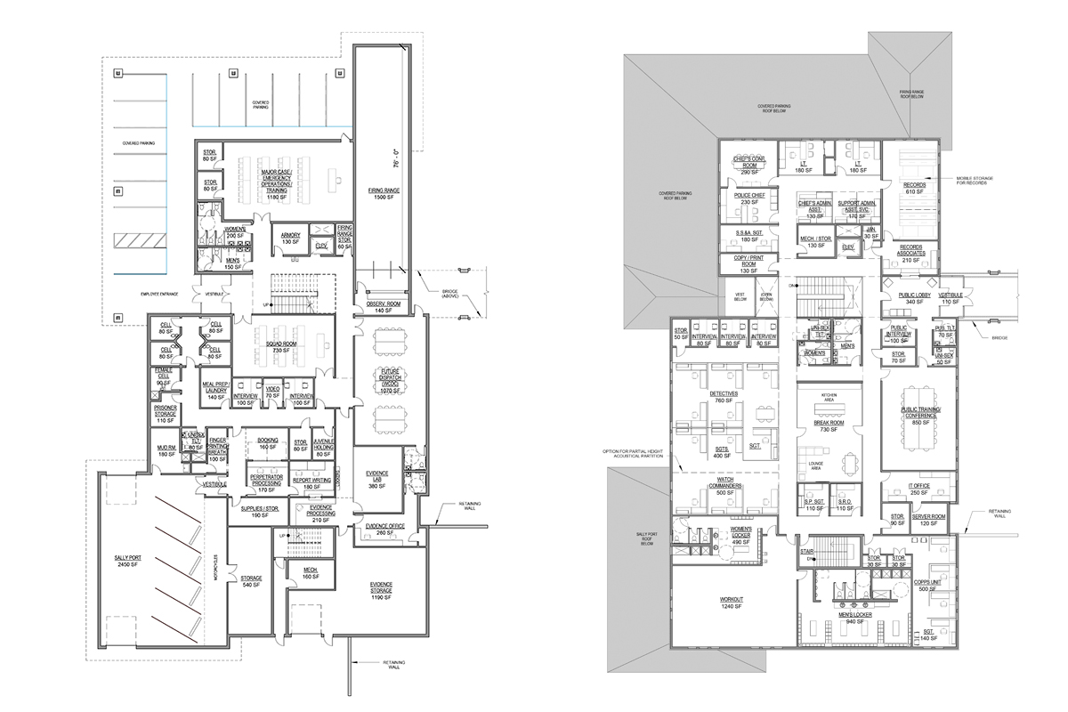
While working at Killeen Studio Architects Cassandra collaborated with Bond Architects to create a "prairie style" police station located on an undeveloped sloped parcel adjacent to the existing city hall. Aspects of the project included but were not limited to: programming, code compliance, work-flow assessment, square footage assessments, and schematic elevations, etc.
