While working at GreenbergFarrow, under the leadership of the residential director Brian Ahern, our team of five submitted this design solution for the AdaptNYC Micro-Unit Competition that was a part of a large initiative by Mayor Bloomberg to provide affordable housing in the borough of Manhattan.

Rendering of the penthouse level outdoor spaces.

Proposed East Elevation
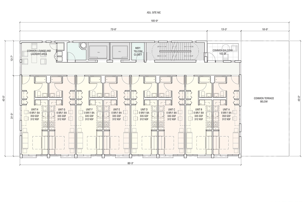
Proposed Floor Plan Levels 3-8

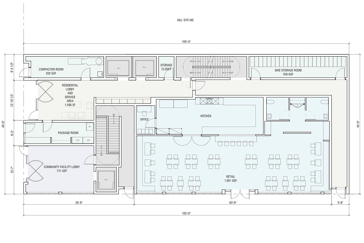
Proposed Main Level Floor Plan